Construction on Sterling Way in Pace is set to begin after Santa Rosa County approved the development of a new manufacturing facility and office building for electrical, mechanical and plumbing contractor Comfort Systems USA.
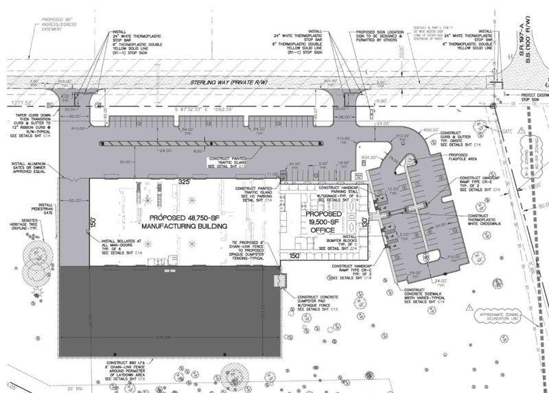
Comfort Systems is planning to build a 48,7500-square-foot manufacturing building, an attached 19,500-square-foot corporate office space and a parking lot with 114 spaces on a 16-acre lot fronting Sterling Way, according to the project’s development order.
The facility will be a short distance away from Pace Commons subdivision and Ascend at Woodlands apartment complex.
This project is the third Comfort Systems facility in Escambia and Santa Rosa counties. Comfort Systems currently has an administrative office on Plantation Road, as well as a manufacturing site on North Palafox Street.
The construction likely won’t impede on residents’ daily life since it will be developed near a tucked-away industrial area that holds the headquarters of chemical manufacturer Sterling Fibers and the Santa Rosa Energy Center, a natural-gas power plant that’s operated for more than two decades.
Comfort Systems USA is a multibillion dollar company that’s headquartered in Houston, Texas. It is ranked as one of the 100 fastest-growing companies in the nation by Fortune, where they currently hold the no. 62 spot.
Comfort Systems has 45 operating companies, or branches, across 170 locations in the U.S that range from Seattle, Washington to Miami.
The company’s southeast branch, Comfort Systems USA Southeast, is headquartered in Pensacola and is responsible for this project. Their footprint extends from the Pensacola area to Alabama and Georgia, but they also do work in Louisiana, Mississippi and South Carolina.
They have worked on the Santa Rosa County Courthouse, Navy Federal Credit Union’s main campus, the University of West Florida Science Building and the Institute for Human and Machine Cognition in downtown Pensacola.
The president of the branch, Kim Anderson, initially filed their plans for the facility in January. Anderson filed an updated proposal in late April and revised their plans once again before they were approved by Santa Rosa County on June 19.
This article originally appeared on Pensacola News Journal: Pace soon to be home to one of the fastest-growing companies in the nation
Reporting by Edward Bunch III, Pensacola News Journal / Pensacola News Journal
USA TODAY Network via Reuters Connect


